St-Albert (Centre-du-Québec) : Laissez-vous séduire par ce splendide domaine avec maison de campagne en construction de 8,26 acres (9,78 arpents), un véritable havre naturel bordé par la rivière Nicolet et entouré d’un magnifique couvert forestier assurant intimité et sérénité. À moins de 2 km du village de Saint-Albert, cette propriété comprend une maison neuve en construction de haute qualité, un garage double avec plancher radiant et porte de 10 pieds, une grange isolée sur deux étages chauffés au bois, ainsi que l’ancienne résidence maintenant solidement posée sur des piliers de béton et prête pour une nouvelle utilisation. Un endroit idéal pour ceux qui recherchent un grand espace, un environnement paisible ou la possibilité de créer une petite fermette.
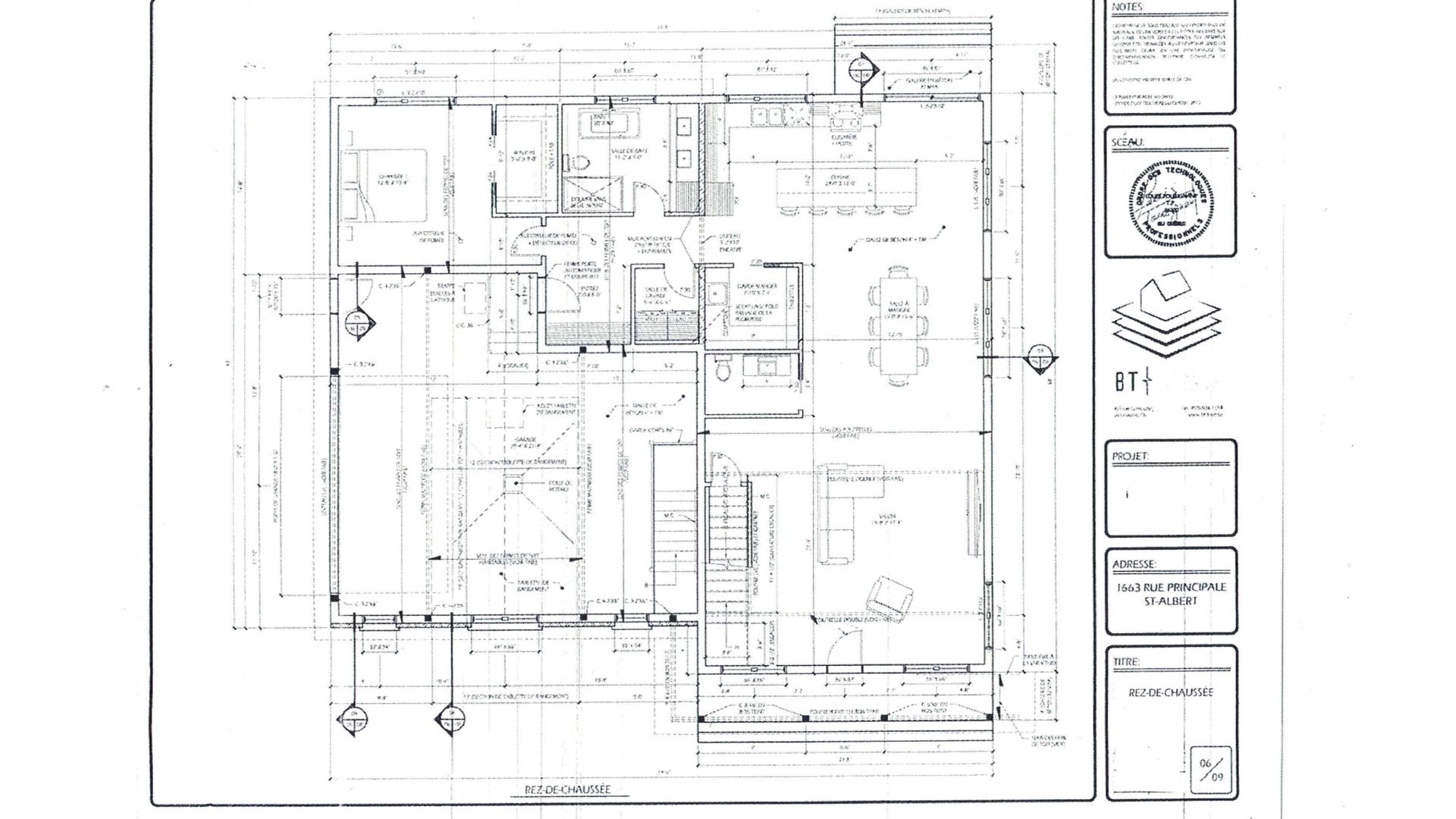
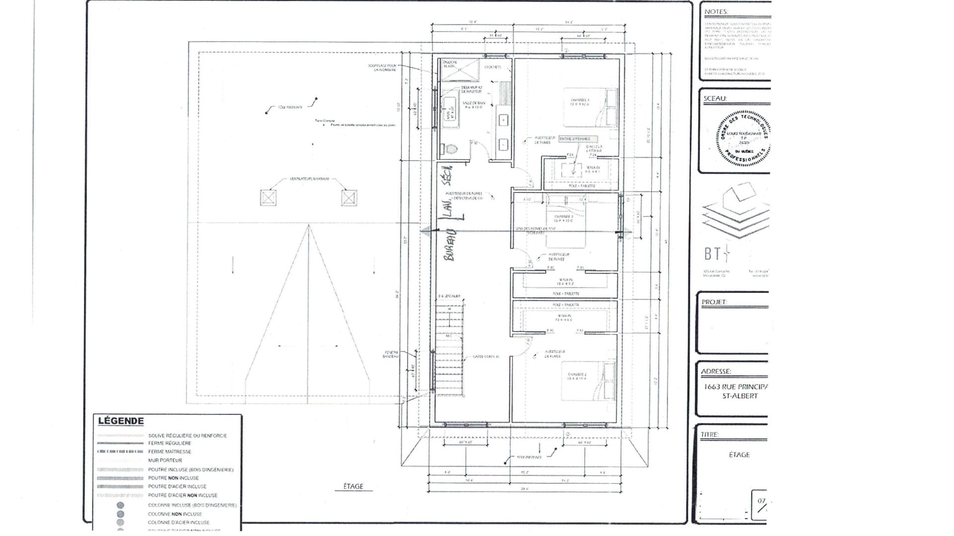
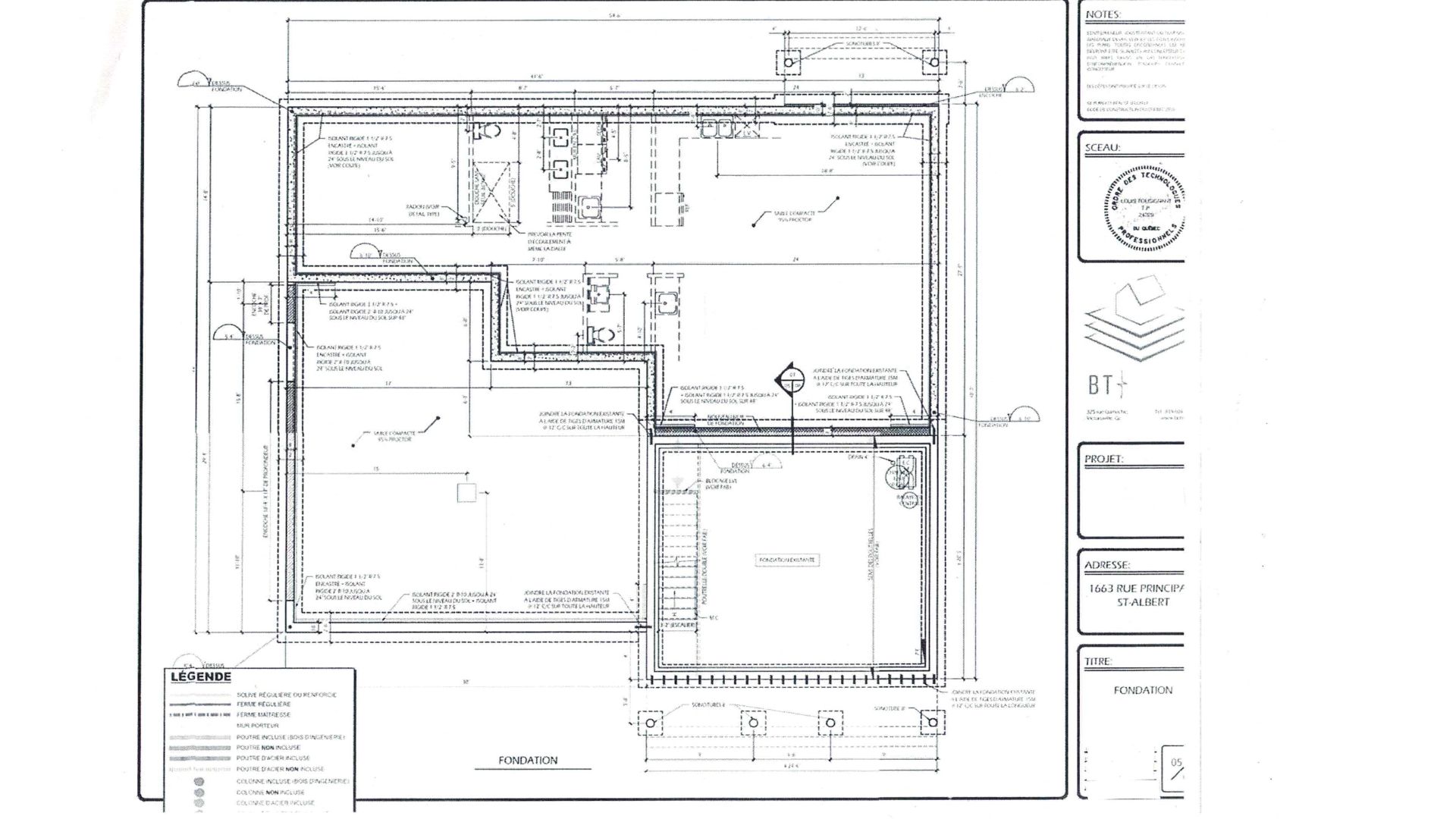
LA MAISON
Le vendeur a entrepris un projet majeur en relocalisant l’ancienne maison afin de bâtir une résidence entièrement neuve sur le solage déjà en place, lequel a été agrandi et presque doublé pour offrir un espace de vie moderne et spacieux. Les travaux essentiels sont terminés : installation électrique, plomberie, isolation et ossature des murs. Les planchers de béton sont équipés d’un système complet de chauffage radiant couvrant l’ensemble de la maison, incluant le garage double. Des plinthes électriques ont aussi été installées au sous-sol pour un confort accru.
La construction se distingue par une fenestration abondante aux cadres d’aluminium, une toiture de tôle durable et un revêtement extérieur en bois d’ingénierie SmartSide. Un drain français neuf muni de regards entoure la maison pour assurer une gestion efficace de l’eau.
LES BÂTIMENTS
En plus, le domaine avec maison de campagne en construction offre une grande grange isolée sur deux niveaux, chauffée au poêle à bois, idéale pour un atelier, un espace de loisirs ou l’accueil de petits animaux. L’ancienne maison, maintenant installée sur des piliers de ciment, est prête à être réaménagée selon vos besoins ou votre imagination.
Avec ses bâtiments en place, son vaste terrain et son atmosphère apaisante, ce domaine possède tout le potentiel nécessaire pour développer une fermette ou pour créer un espace de vie original où nature et confort se rencontrent harmonieusement.
UN COIN DE QUIÉTUDE À DEUX PAS DES SERVICES
Même si elle bénéficie d’un environnement naturel enveloppant, la propriété reste tout près des commodités grâce à sa proximité du village de Saint-Albert. La forêt mature qui entoure les lieux apporte une intimité rare, tandis que la rivière Nicolet longeant la propriété contribue à une ambiance calme et bucolique.
UNE PROPRIÉTÉ À DÉCOUVRIR
Que vous souhaitiez achever la construction à votre goût, entreprendre un projet agricole ou tout simplement profiter d’un domaine tranquille à quelques minutes des services, ce domaine avec maison de campagne en construction se démarque par son potentiel exceptionnel. La qualité des travaux réalisés et le charme naturel du site en font une opportunité à ne pas laisser passer.
Contactez-nous pour plus de détails ou pour organiser une visite. Vous apprécierez pleinement ce domaine unique en le découvrant sur place.
Cette propriété ne correspond pas tout à fait à ce que vous cherchez?
Cliquez ici pour accéder aux autres propriétés que nous avons à vendre.
Terrain : Boisé
Cette propriété ne correspond pas tout à fait à ce que vous cherchez?
Cliquez ici pour accéder aux autres propriétés que nous avons à vendre.
La présente ne constitue pas une offre ou une promesse de vente pouvant lier le vendeur à l'acheteur, mais une invitation à soumettre des promesses d'achat.



































